13701153009
Home / 首页
About / 关于
Case / 案例
News / 新闻
Contact / 联系
Home / 首页
About / 关于
Case / 案例
News / 新闻
Contact / 联系
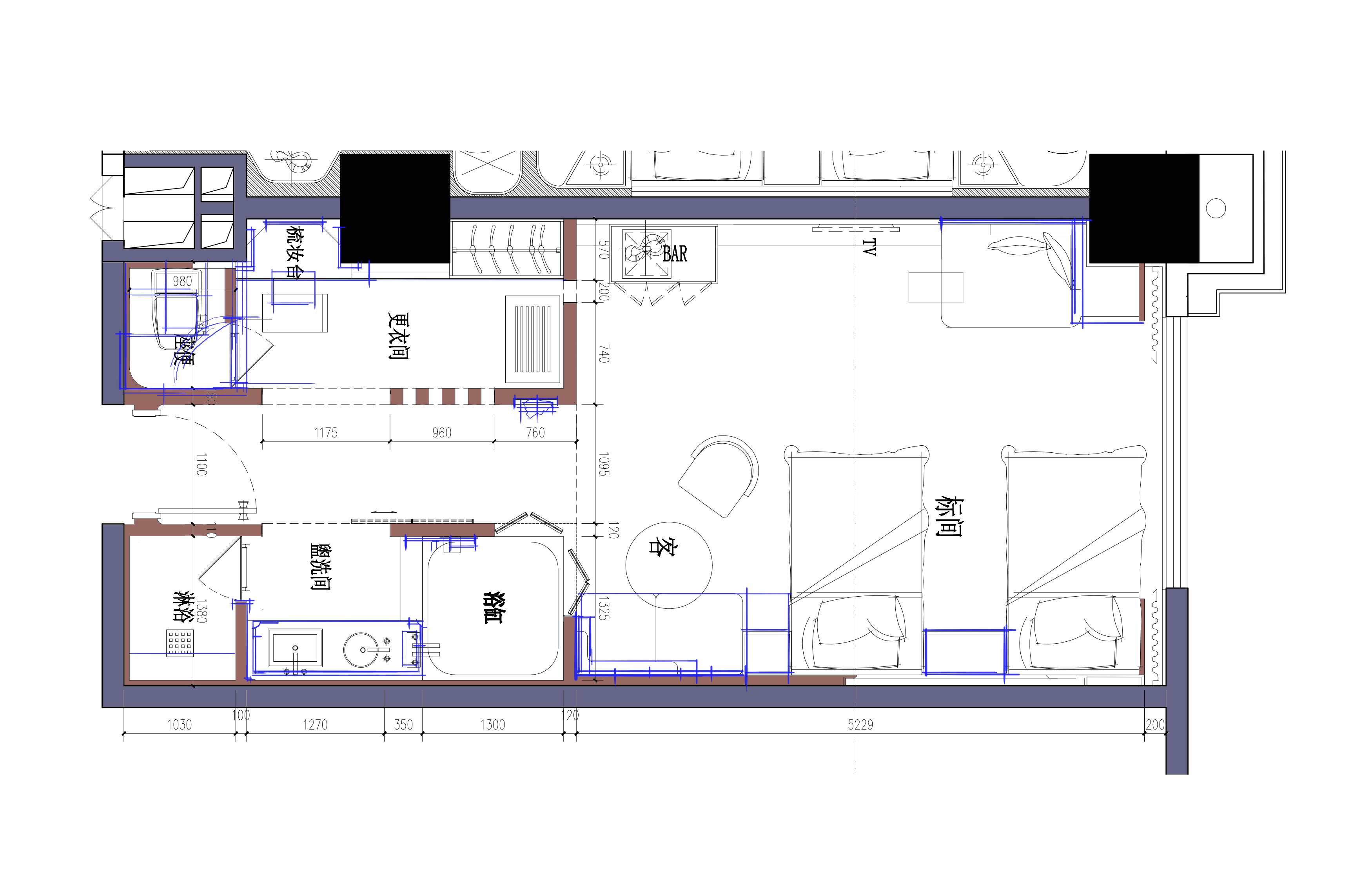
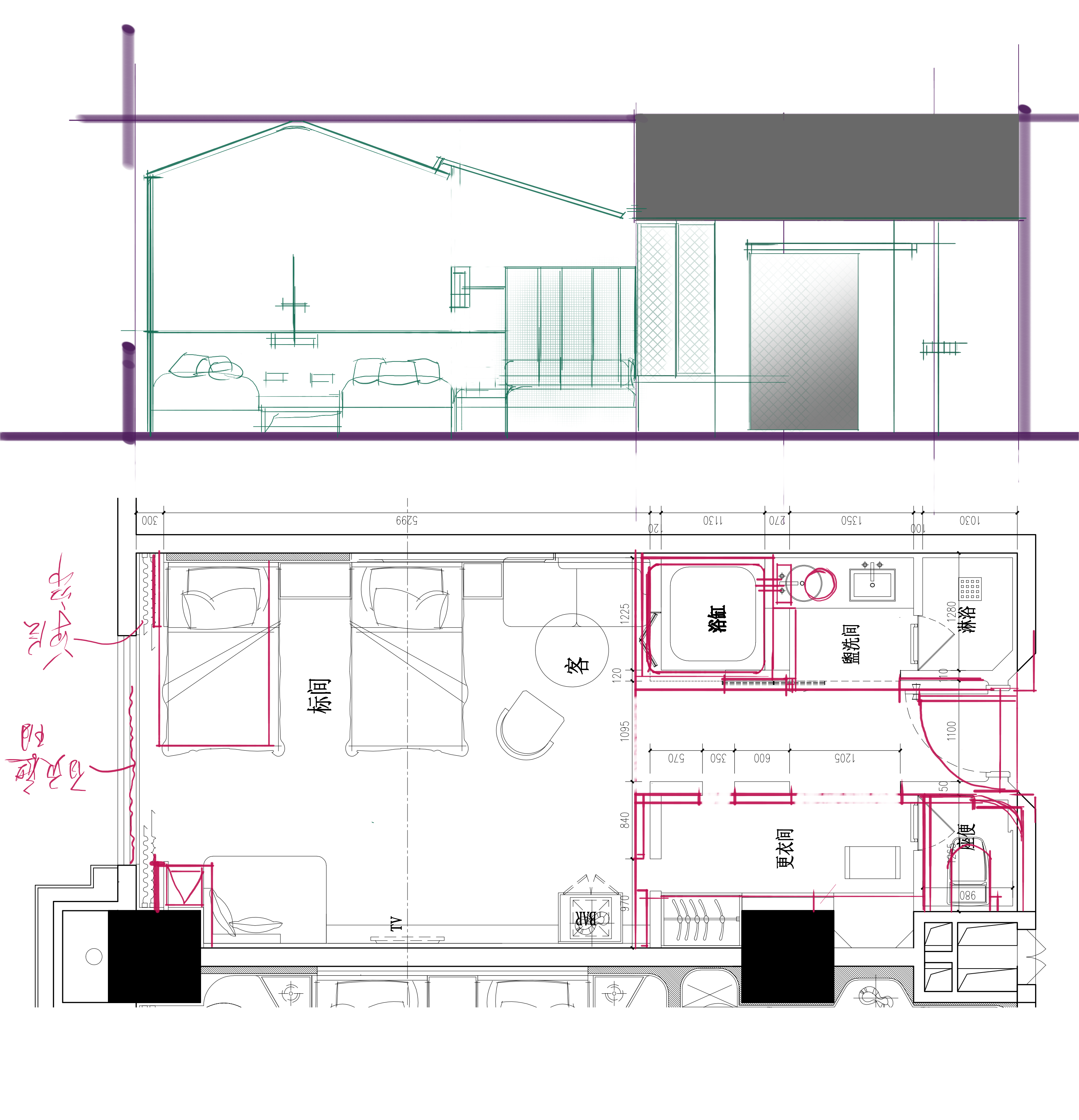
同一客房的6种方案探讨
发布时间:2023-09-13 发布人:来自72创设计 浏览次数:1184
上一条:
榕江的家具设计
下一条:
桂林米蓝手绘方案初稿